
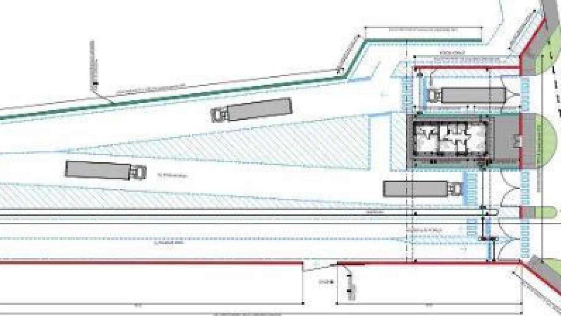
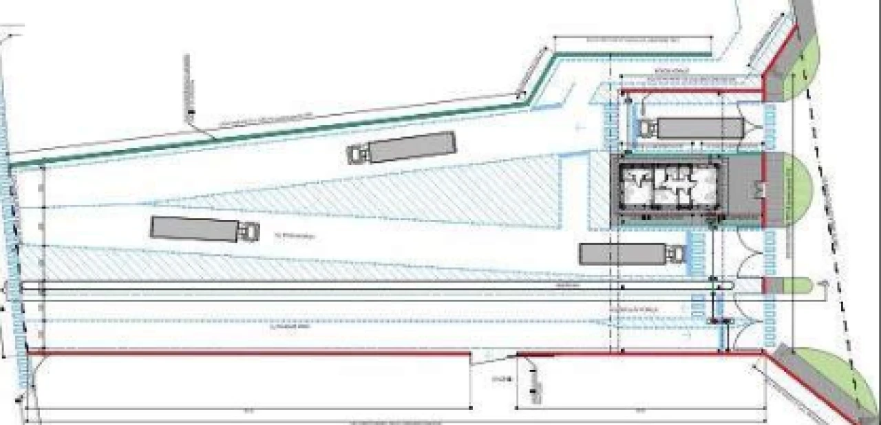
Realizzazione nuovi ingressi 0 e 7 Adeguamento viabilità INBOUND e OUTBOUND
Il progetto prevede l’adeguamento della viabilità interna di stabilimento secondo le nuove esigenze produttive, attraverso la realizzazione di due nuovi GATE nonché l’adeguamento della viabilità interna INBOUND e OUTBOUND.
Le opere sono così suddivise:
- Realizzazione NUOVO GATE 0
- Demolizione e ricostruzione GATE 7
- Adeguamento della viabilità interna INBUOND e OUTBOND attraverso la realizzazione di nuove sedi stradali,
l’allargamento di sede stradali esistenti e la manutenzione della restante area oggetto di intervento.
NUOVO GATE 0 e GATE 7
Il portale d’ingresso dei nuovi GATE è costituito da struttura in profilati metallici su fondazioni in c.a., con solaio di copertura in lamiera isolata con sistema FRESCOBORD e impermeabilizzata con telo in poliolefine. Al suo interno, vi è una secondo struttura in c.a. destinata al servizio di sorveglianza (guardiola d’ingresso), nella quale vengono ricavate postazioni di lavoro, locale ICT ,corpi WC, sala d’attesa e area ristoro. Completano le opere:
- Pavimenti e rivestimenti in gres porcellanato, con certificazioni antiscivolo per le aree esterne
- Tamponature esterne della guardiola in blocchi termici certificati, con successivo rivestimento in pannelli di lana minerale e da facciata ventilata in alluminio composito (ALUCOBOND) in EURO CLASS B per la resistenza al fuoco e vernice garantita 20 anni
- Rivestimento architettonico in alluminio composito (ALUCOBOND) per le strutture a vista
- Serramenti a taglio termico con vetro antiproiettile classe BR3 con resistenza certificata fino alla 357 magnum
- Corpi WC completi di sanitari in ceramica e accessori
- Controsoffitti in pannelli di lana minerale, in lamiera forata e frangisole
- Tendaggi ignifughi e arredi fissi per postazioni di lavoro mediante unità a cassetta
- Impianto riscaldamento/raffrescamento VRF con pompa di calore ad espansione e diffusione interna
- Impianto di ventilazione forzata e ricambio d’aria eseguita con recuperatori di calore a scambio totale aria, completo di sistema di distribuzione LINDAB SAFE
- Impianto FM e di illuminazione per guardiola
- Impianto di trasmissione dati e telecomunicazione a servizio di ICT di stabilimento.
- Impianto di Illuminazione sede stradale con armatura stradale dimmerabile, completo di sistema di controllo DALI
- Controllo accessi mediante barriere stradali, videosorveglianza, sistemi interfono, lettori bagde
- Muri in c.a. facciavista a contenimento della linea ferroviaria da un lato e della nuova sede stradale dall’altro
- Opere varie di sistemazione esterna quali percorsi pedonali, nuova sede stradale, aree a verde, segnaletica stradale, fognature acque reflue e acque bianche, fosse settiche, recinzioni, cancellate, ecc..
ADEGUAMENTO VIABILITA’ INBOUND-OUTBOUND
Il progetto è finalizzato all’adeguamento della viabilità interna al fine di soddisfare le esigenze di produzione di stabilimento, La superfice complessiva d’intervento è pari a mq.35.000 e comprende:
- Realizzazione di nuova sede stradale e allargamento delle carreggiate esistenti, con rinforzo delle stesse mediante geogrlia in poliestere (PET) tridimensionale
- Adeguamento delle reti fognarie
- Impianto di Illuminazione sede stradale con armatura stradale dimmerabile, completo di sistema di controllo DALI
- Segnaletica stradale orizzontale e verticale
- Barriere metalliche di sicurezza
- Muri di sostegno in c.a.
- Opere di ingegneria naturalistica per consolidamento scarpate
- Attività complemetari quali percorsi pedonali, recinzioni, cancellate e sistemazione di aree a verde